Modernes Haus mit Garten und Whirlpool mit Blick auf das Meer, breiteres Zentrum von Porec - in Aufbau
- Kode : 00881
- Lage : Poreč
- Haustyp : Reihenhaus
- Wohnfläche : 123 m2
- Grundstücksfläche : 210 m2
- Anzahl der Etagen : 2
- Anzahl der Zimmer : 5
- Anzahl der Schlafzimmer : 3
- Anzahl der Badezimmer / WC : 2 / 0
- Anzahl der Parkplätze : 2
- Baujahr : 2022
- Entfernung zum Zentrum : 1500 m
- Entfernung zum Meer : 1000 m
- Meerblick : Ja
- Balkon : Ja
- Klimaanlage : Ja
- Satelit : Ja
- Heizung : Ja
- Fußbodenheizung : Ja
- Lagerung : Ja
- Kamin : Ja
- Jacuzzi : Ja
- Strom umgesetzt : Ja
- Leitungswasser : Ja
- Abwasser umgesetzt : Ja
- Asphaltiert : Ja
- Baugenehmigung : Ja
- Energieeffizienz : Nicht bekannt
RESERVIERT
In der Nähe des Zentrums von Porec stehen fünf im Bau befindliche moderne Villen mit Garten und wunderschönem Meerblick zum Verkauf.
Die Villen sind aus sehr hochwertigen Materialien:
Außendämmung: 10 cm Steinwolle, Farbe Caparol / JUB.
Außenschreinerei: Schuco-Lackierung außen anthrazit und innen weiß, 3-Schicht-Glas gefüllt mit Argon, Profilstärke 8,5 mm, eingebautes Moskitonetz und elektrische Rollläden.
Die Innenschreinerei wird von der Marke BINNI sein, die Türhöhe wird 2,30 m mit Magnetverschluss betragen.
Die Innenwände werden zusätzlich schallgedämmt und die Decken von Knauf abgesenkt.
Heiz- und Kühlsystem: Fußbodenheizung über Wärmepumpe, Inverter-Klimaanlagen in allen Räumen.
Grohe Toiletten im Badezimmer.
Die Innentreppe ist aus Granit, mit einem Glasgeländer und Holzhandläufen.
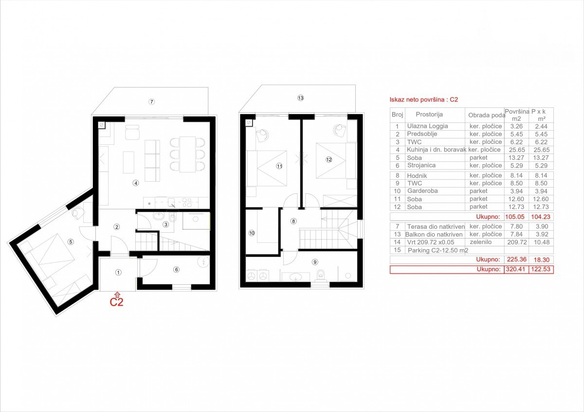
Villa C2 hat eine Fläche von 122,53 m2, mit einem Garten von 209,72 m2, in dem sich ein Whirlpool für 4 Personen befindet.
Die Villa besteht aus zwei Etagen.
Das Erdgeschoss besteht aus einer Eingangshalle, einem Technikraum, einem Flur, einem Badezimmer, einem Schlafzimmer und einem offenen Raum mit Küche, Wohnzimmer und Esszimmer von 25,65 m2. Diese Villa verfügt über eine Schuco / Aluplast-Glaswand, die zu einer überdachten Terrasse von 7,84 m2 und einem Garten mit einem modernen Kamin zum Genießen und einem Whirlpool für 4 Personen führt.
Im Obergeschoss befinden sich zwei Schlafzimmer, ein großes Badezimmer von 8,50 m2 und ein Ankleidezimmer. Beide Schlafzimmer haben Zugang zu einem überdachten Balkon mit wunderschönem und unverbaubarem Meerblick.
Die Villa hat große Glaswände, durch die viel Sonnenlicht einfällt. Es ist nach Westen ausgerichtet und hat einen schönen, unverbauten Blick auf das Meer.
Die Villa liegt 1500 m vom Stadtzentrum und 1000 m vom Meer entfernt im Elite-Teil von Porec.
Es verfügt über zwei Parkplätze.
In der Nähe befinden sich Promenaden am Meer, schöne Strände, ideale Lage für Liebhaber sportlicher Aktivitäten (Tennisplätze, Radwege).
Die voraussichtliche Energieklasse ist A.
Anzahl der Aufrufe: 3862
Der Käufer zahlt eine Maklerprovision von 3% + MwSt
KONTAKTIEREN SIE DEN AGENTEN
HINWEIS: Wir beantworten keine möglichen Fehler in den Eigenschaftsbeschreibungen, wir möchten jedoch so genau und genau wie möglich sein.
