Apartment with two bedrooms and a roof terrace - under construction
- Code : 01115
- Location : Poreč
- Building size : 73 m2
- Lot size : 0 m2
- Floor : 3
- Number of floors : 0
- Number of rooms : 3
- Number of bedrooms : 2
- Number of bathrooms / WC : 1 / 0
- Number of parking lots : 1
- Year of construction : 2024
- Distance from center : 1500 m
- Distance from sea : 800 m
- Distance from Poreč : 10000 m
- Elevator : Yes
- Balcony : Yes
- Internet : Yes
- Climate : Yes
- Satellite : Yes
- Heating : Yes
- Underfloor heating : Yes
- Depository : Yes
- Current implemented : Yes
- Conducted water : Yes
- Sewage implemented : Yes
- Asphalted : Yes
- Building permit : Yes
- Energy efficiency : Not specified
391.878 €
For sale is a spacious apartment with two bedrooms on the third floor of a modern building with an elevator.
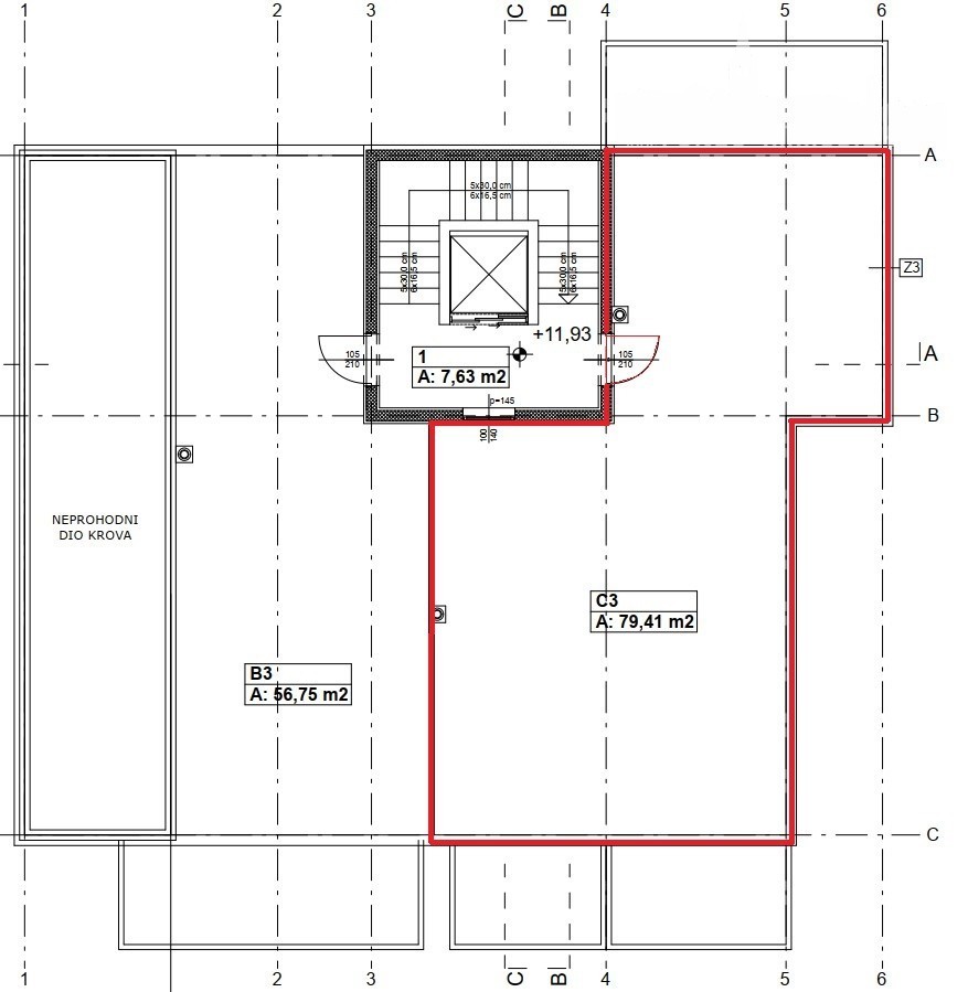
The apartment with a net usable area of 73.19 m2 will consist of a hallway, a living room, a kitchen, a dining room, a bathroom, a pantry, two bedrooms, and a covered terrace.
Heating and cooling will be solved through air conditioning, and electric underfloor heating will be installed in the bathroom.
Mosquito nets and electric blinds will be installed on all external openings.
The apartment will also have a roof terrace measuring 79.41 m2 (usable area 19.85 m2), a storage room in the basement, and one parking space.
Number of views: 1411
The buyer pays an agency commission of 3% + VAT
CONTACT THE AGENT
NOTE: We do not answer any possible errors in property descriptions, but we want to be as precise and accurate as possible.
