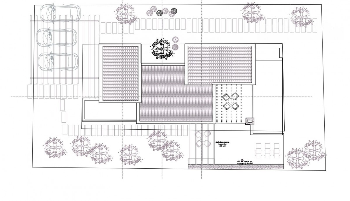
Baugrundstück mit Genehmigung, bezahltem Projekt und Nebenkosten, 800 m vom Meer entfernt
- Kode : 01141
- Lage : Poreč
- Wohnfläche : 0 m2
- Grundstücksfläche : 501 m2
- Entfernung zum Zentrum : 800 m
- Entfernung zum Meer : 800 m
- Entfernung zum Poreč : 7000 m
- Strom umgesetzt : Ja
- Leitungswasser : Ja
- Abwasser umgesetzt : Ja
- Asphaltiert : Ja
- Baugenehmigung : Ja
290.000 €
Nur 800 m vom Meer entfernt steht ein Baugrundstück mit Projekt, bezahlten Nebenkosten und einer gültigen Baugenehmigung zum Verkauf.
Das Grundstück liegt am Rande der Urbanisation und ist auf einer Seite auf Grünflächen und Weinberge ausgerichtet.
Im Dorf, im Umkreis von 500 m um das Grundstück, gibt es ein Geschäft, eine Schule, Restaurants, eine Apotheke und andere Einrichtungen, die für ein angenehmes Familienleben notwendig sind.
Strom, Wasser und Abwasser sind auf dem Grundstück vorhanden.
Der Bau kann sofort beginnen.
Anzahl der Aufrufe: 2102
Der Käufer zahlt eine Maklerprovision von 3% + MwSt
KONTAKTIEREN SIE DEN AGENTEN
HINWEIS: Wir beantworten keine möglichen Fehler in den Eigenschaftsbeschreibungen, wir möchten jedoch so genau und genau wie möglich sein.
